ホームナビ

仲介手数料無料 新築戸建大島7丁目 都営新宿線大島 [No.11576]  おすすめ


物件名 仲介手数料無料 新築戸建大島7丁目 都営新宿線大島
物件種別 新築戸建
価格 成約済
沿線/最寄駅 都営新宿線 大島駅
交通 徒歩9分
所在地 東京都江東区大島7丁目
土地面積㎡(坪数) 52.79㎡
土地権利 所有権
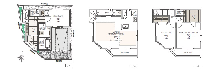
建物面積 106.52㎡
構造・工法 木造在来工法
間取 3LDK
都市計画/用途地域 市街化区域/準工業地域
建ぺい率/容積率 60%・240%
私道負担・道路 西5.4m公道・南4m私道
完成時期(築年数) 令和4年3月下旬
現況 建築中
引き渡し(時期/方法) 相談
取引態様 媒介(仲介)
地域 江東区
こだわりアイコン バルコニー フローリング 陽当たり良好 モニターインターフォン 角地 浴室乾燥機付き システムキッチン 新築
更新日時 登録:2021年12月05日 08時39分
更新:2022年03月27日 05時01分

※このお問合せフォームは、通信が暗号化されておりお客さまのプライバシーが守られています。

<< 前のページに戻る

おすすめ物件情報

三多摩不動産営業時間/定休日/QR CODE